Langweidstrasse, Grüt bei Wetzikon (ZH)

Neubau eines Mehrfamilienhauses in Holzbauweise

timofust_MFH Gruet-5
Aufnahme 2024 (Foto: Timo Fust)

Direktauftrag 2017
Fertigstellung 2019

Fotografien: Timo Fust / GSI Architekten AG

Aufgabenstellung

Der Bauherr ist im Einfamilienhaus aus den 50er Jahren auf der Bauparzelle aufgewachsen und hat dadurch eine starke Verankerung zum Ort. Das kleine Haus auf der grossen Parzelle soll nach fast 70 Jahren Lebensdauer einem Mehrfamilienhaus Platz machen. Herausforderung und Aufgabe war es, die räumlichen Qualitäten und den starken Landschaftsbezug trotz markant grösserem Volumen zu bewahren. Ein langgezogenes Volumen nach dem Vorbild des historisch ortsüblichen Haustypus «Flarz» bildet die Basis des Entwurfs. Die Längsstellung des Hauses in topografischer Falllinie belässt die Hangwirkung und den Weitblick in die Drumlin-Landschaft des Zürcher Oberlandes. Den Ansprüchen der ortsverträglichen, inneren Verdichtung soll so entsprochen werden.

Ortsbau

Die Gemeinde Grüt gehört zu Gossau und ist im Einzugsgebiet von Zürich nur gerade 18 Kilometer von der Stadt entfernt. Ab 1950 erfuhr Grüt ein nahezu explosives Bevölkerungswachstum. Innerhalb von 20 Jahren verdreifachte sich die Einwohnerzahl auf heute 2100 Einwohnerinnen und Einwohner. Das Ortsbild veränderte sich in der Folge stark. Während im alten Dorfkern von Grüt noch immer einige der alten Flarze mit ihren charakteristischen Heimarbeiterfenstern zu sehen sind, wird der Gossauer Ortsteil mittlerweile von zahlreichen neuen, meist anonymen Wohnsiedlungen geprägt. Das Haus an der Langweidstrasse möchte als Gegentrend die Dörflichkeit, örtliche Identifikation und den Bezug zur Landschaft stärken. Durch die schlanke Kubatur, die Holzbauweise und eine biodiverse Gartengestaltung werden die ländlichen und bauhistorischen Themen modern umgesetzt.

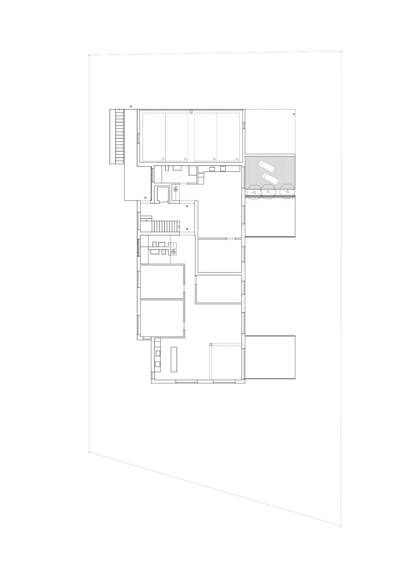
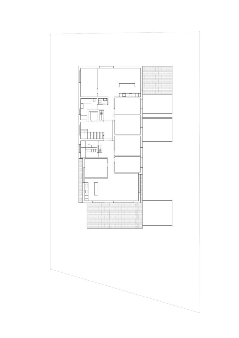
Grundstruktur

Das viergeschossige Haus tritt an der Langweidstrasse dezent zweigeschossig in Erscheinung und nutzt die abfallende Topografie des Grundstücks. So ist das Erdgeschoss ein Geschoss tiefer als der Zugang. Das Mehrfamilienhaus beherbergt 6 Wohnungen. Im Erdgeschoss und den zwei Obergeschossen liegen die 2 1/2 Zimmerwohnungen und 4 1/2 Zimmerwohnungen. Jede Wohnung hat über zwei bis drei Ausrichtungen und den privaten Aussenraum einen unmittelbaren Bezug zur naturnahen Umgebung. Im Untergeschoss sind die Abstellräume, der Technikraum und ein multifunktionaler, natürlich belichteter Hobbyraum angeordnet.

Nachhaltigkeit und Ökologie

Der Bauherrschaft waren die ökologischen Aspekte von Anfang an wichtig. Das Haus wurde nach den Standards von Minergie und ecobau gebaut. Zur Minimierung der grauen Energie sind die erdberührten Räume des Kellers und des Veloraums, das Treppenhaus mit Liftschacht sowie die Garagentrennwand und -decke mit Recycling-Beton gebaut.

Die Aussen- und Innenwände wurden als Holzelemente konstruiert. Die Geschossdecken aus CLT-Platten (Brettsperrholzplatten) kamen ab Werk des Herstellers vorkonfektioniert auf die Baustelle. So konnte das Haus in zwei Tagen aufgerichtet werden.

Auf dem Flachdach wurde eine Solareinheit für Warmwasser und Heizung platziert, der Rest der Dachfläche wurde mit einer PV-Anlage belegt. Eine spezielle Abrechnungssoftware überwacht den Strombezug der Eigenverbrauchsgemeinschaft und analysiert den Warm- und Kaltwasserverbrauch sowie die bezogene Heizenergie pro Wohneinheit.

Materialisierung

Die Fassade mit der unterschiedlich breiten, rohgesägten Schalung wurde vor Ort montiert.

Die Wohnungen haben gebürstete Lärchendielen als Bodenbelag. Die sichtbare Deckenseite der CLT-Platten ist leicht weiss lasiert. Die innere Bekleidung der Aussenwände mit 3-Schichtplatte (FI/TA) ist farblos (UV-Schutz) lasiert. Die Wohnungs- und Zimmertrennwände sind mit Fermacellplatten bekleidet und mit einem feinen Sumpfkalk-Abrieb abgeglättet. Mit der Lehmfarbe sind die Trennwände «offenporig» und ergeben ein angenehmes und ausgeglichenes Raumklima.

Gartensitzplätze

Die ebenerdigen, privaten Sitzplätze sind mit Naturstein gepflastert. Die Balkone und Terrassen haben einen FSC-zertifizierten IPE-Holzrost. Die mit Rohren konstruierten Pergolen mit gelben Raffsegeln rahmen die Sitzplätze ein. Bei den Raffsegeln wurde eine aus dem Segelbau bewährte Technik angewendet: So lassen sich die Beschattungen über einen mechanischen Seilzug öffnen und schliessen.

Umgebung

Die Umgebungsgestaltung soll einen Beitrag für die Biodiversität leisten. Auf Rasenflächen wurde verzichtet, dafür bedecken artenreiche Ruderalflächen grossflächig das Grundstück. Unterschiedliche einheimische Stauden und Gehölze schaffen räumlich wie biologisch wertvolle Strukturen. Die Wege und Plätze sind chaussiert. Das Dachwasser wird in kleinen Sickergräben zu einer offenen, sickerfähigen Retentionsfläche geführt und bildet bei Nasswetter kleine Wassermulden.

Vier Säulenhainbuchen gliedern der grossen Garagenvorplatz, bringen Schatten und Ambiente auf dem Ankunftsplatz. Ein wasserdurchlässiger Magerbeton vermag die Scherkräfte der Reifen beim Manövrieren aufnehmen. Die Besucherparkplätze sind als Schotterrasen ausgebildet, um die Versiegelung zu minimieren. Der naturnahe Garten ohne Zaun sichert einen natürlichen Übergang zur unmittelbar angrenzenden Drumlin-Graslandschaft. Er schafft einen offenen Siedlungsüberhang für Mensch und Natur und kommt so den Ansprüchen hochwertiger Siedlungsränder nach.