Mérida, Yucatán, Mexiko

«El Chante»: Einfamilienhaus in Mérida

188_Haus in Merida Mexico_Fassade Strasse

Planung: ab Frühling 2021
Ausführung: 2024 - 2025
Fotografien: GSI Architekten AG

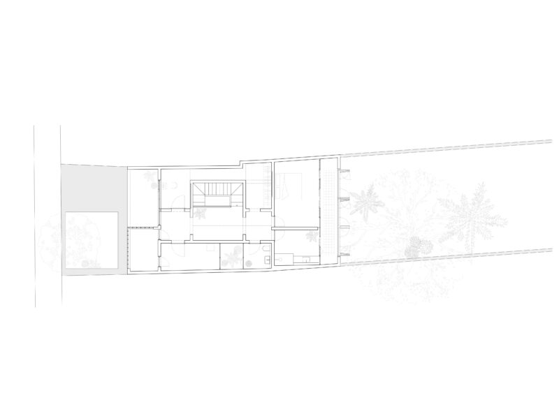
Mitten im historischen Zentrum von Mérida realisierte GSI Architekten das «Casa El Chante». Ein schweizerisch-mexikanisches Paar kaufte das verlassene Grundstück bereits während der Pandemie. Darauf befand sich ein einfaches Häuschen aus den 1960er Jahren und ein 65 Meter langes und 8 Meter breites Stück Land im Hinterhof. Weil die Bausubstanz ungenügend war, entschied sich die Bauherrschaft für einen Neubau. Wichtig war der Bauherrschaft, die lokalen Gegebenheiten zu respektieren – klimatisch, handwerklich und kulturell – und den hinteren Teil des Grundstücks in einen wilden, paradiesischen Garten zu verwandeln.

GSI Architekten analysierte die Gegebenheiten aus der Ferne anhand von topografischen Plänen, Bild- und Videomaterial und entwarf ein zweistöckiges Gebäude mit zwei Schlafzimmern, grosszügigen Bädern, einem offenen Koch- und Wohnbereich, einem Home Office, einem Musikstudio und einem Wasch- und Trocknungsraum.

El Chante – ein umgangssprachlicher Ausdruck für «Heimetli» – ist eine Hommage an die Einfachheit und die handwerkliche Qualität mexikanischer Bautradition. Drei Meter hohe Räume, Stahlfenster und -türen von Grupo Vitrum, ein polierter Betonboden, handgefertigte Fliesen von Mosaico Peninsular und massive Zedernholztüren geben dem Haus seine ruhige, klare Ausstrahlung. Besonders markant: die durchlässigen Ziegel von Ardshaus, die nicht nur dekorativ sind, sondern für angenehme Luftzirkulation sorgen – ebenso wie der Innenhof und das Treppenhaus, das wie ein vertikaler Lüftungsschacht funktioniert. Eine Klimaanlage wird kaum benötigt.

Die Liebe zum Detail zeigt sich überall: im Farbkonzept, den handgefertigten Lavabos aus Zement von provenance.mx, den mit Mikrozement verputzten Wänden, den grünen Keramikfliesen in den Bädern – alles sorgfältig aufeinander abgestimmt. Ein besonderer Hingucker sind die beiden antiken Eisentüren, die vom bestehenden Haus stammen und neu integriert wurden.

Schon während der Bauzeit wuchsen im Garten einheimische Laubbäume, Bananenstauden, Zitrusfrüchte, Kakteen und ein Kräutergärtchen heran. Sie bieten die Kulisse für den tiefblauen Pool, dessen Farbe an eine Cenote erinnert, und den grosszügigen Kiesplatz, möbliert mit Acapulco-Stühlen und Möbeln von Designcacao.mx.

Im Frühling 2025 wurde das Projekt nach einer Bauzeit von rund 18 Monaten abgeschlossen.