Eschlikon (TG)
Wettbewerb 1. Rang: Raiffeisenbank Eschlikon – Behaglichkeit und Transparenz
 …
					…
			1. Rang Projektwettbewerb 2016
Fertigstellung 2018
mit a3s Landschaftsarchitektur bsla, Wil
Fotografien: Ueli Alder
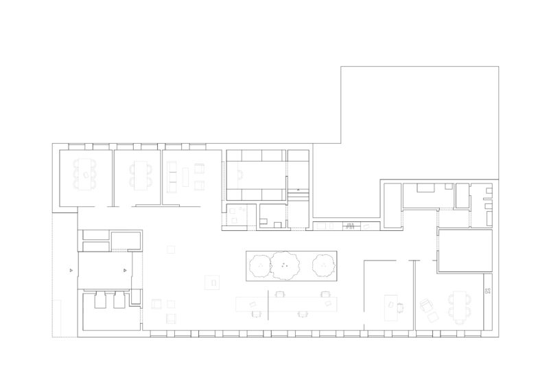
Wer die neue Raiffeisenbank in Eschlikon betritt, sucht vergeblich nach klassischen Bankschaltern. Viel Holz, ein heller Boden mit eingestreutem Kies aus der Region und kunstvolle Wandbilder verbreiten eine warme Atmosphäre. Ein kleiner oasenartiger Wald wächst inmitten der Kundenhalle.
Die neue Raiffeisenbank in Eschlikon soll Transparenz, Grosszügigkeit und Nähe ausstrahlen. Wir haben diese Bedürfnisse in einem Konzept umgesetzt, das auf viel Natur und Regionalität setzt.
Wer am Bankgebäude entlang spaziert, erhält durch die Fenster Einblick in den Bankbetrieb. Über den grosszügigen Vorplatz, der mit mehrstämmigen Gehölzen gesäumt ist, gelangt der Kunde zum Eingang an der Ostseite.
In der offen strukturierten Kundenhalle herrscht eine einladende Wohnraumatmosphäre. Die Eichenholzdecke, hölzerne Einbauten, ein terrazzoähnlicher Hartbetonboden mit geschliffenem Kies aus der Region und die malerisch umgesetzten Naturimpressionen auf den kunstvoll gestalteten Tapeten bilden das Raumensemble. Ein besonderer Blickfang ist der bepflanzte Innenhof: Hier spriessen Waldpflanzen wie Kiefern, Farne und Waldreben.
Die Atmosphäre lebt vom Zusammenspiel innenräumlicher Behaglichkeit und Transparenz. Das Naturmotiv nimmt dabei eine vermittelnde Schlüsselrolle ein. Es erscheint in allen Dimensionen: zweidimensional als Wandbild, dreidimensional in der Kinderparadiesecke und lebendig im zentralen Waldinnenhof.
Der lange Tisch inmitten der Kundenhalle setzt einen Akzent und erinnert bewusst an die Anfänge der Genossenschaftsbank. Damals empfing der Gründervater von Raiffeisen, Pfarrer Johann Traber, die Kunden in seiner Stube.
Auch in der heutigen modernen Beraterbank wird dem persönlichen Gespräch viel Raum gegeben. Die Beraterinnen und Berater sind Gastgeber und bewegen sich mit ihren Kundinnen und Kunden frei. Je nach Bedürfnis wählen sie die passende Gesprächssituation: Am Empfangstisch, in der Sitzecke, bei der Kaffeestation oder an den Hochtischen können so spontane Gespräche entstehen. Die Automaten befinden sich ausserdem im Blickfeld der Berater, sodass diese mit den Kunden unkompliziert Kontakt aufnehmen können.
Erfordert eine Kundenberatung mehr Diskretion, stehen mehrere Beraterräume zur Verfügung. Der grösste Beraterraum kann dank einer Glasschiebewand zur Kundenhalle geöffnet werden. Auf diese Weise entsteht im Nu ein Ort für Veranstaltungen, Apéros oder Vorträge.
 
												 
													 
												 
												 
													 
												 
													 
												