Sasolas, Graubünden
Machbarkeit Tiny House im Maiensäss – Obersaxen (GR)
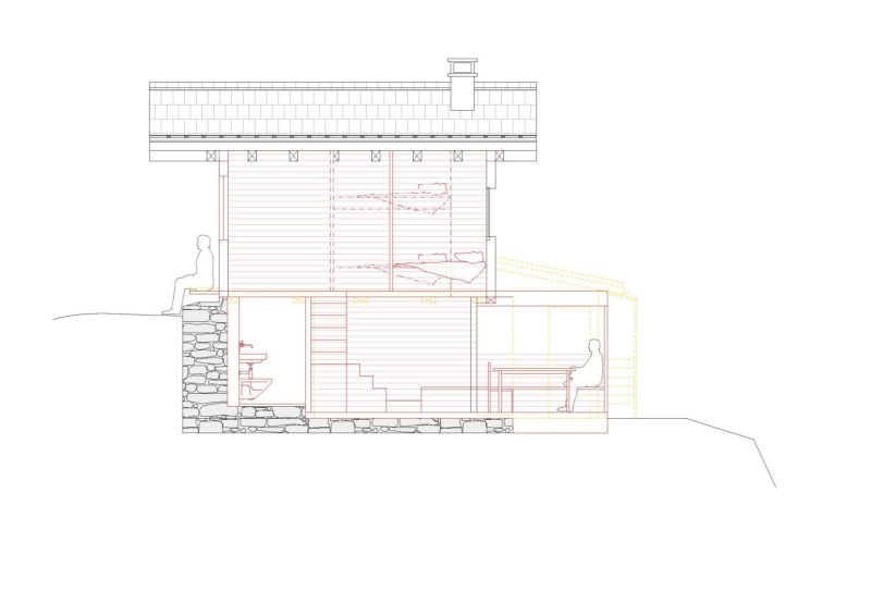
Studie zur Integration eines Tiny house im alten Gebälk des Maiensäss
Sommer 2019
Fotografien: GSI Architekten AG
Studie zur Integration eines Tiny house im alten Gebälk des Maiensäss
Sommer 2019
Fotografien: GSI Architekten AG