Rosenberg, St.Gallen (SG)

Umbau einer Jugendstilvilla: Rückführung zum Ursprung

073_31

Direktauftrag 2015
Fertigstellung 2017
Innenarchitektur
ADDBURO Moskau
by Inna Zaviyalova

Fotografien: GSI Architekten AG

Die Villa an der Müller-Friedbergstrasse 40, erbaut im Jahre 1917 vom Architekten Anton Aberle-Seeger, gehört zu den markantesten Zeitzeugen der Rosenbergvillenbebauung in den frühen 20er Jahren. Das Inventar würdigt die architektonische Qualität und ihre bedeutende städtebauliche Position durch ihre Grösse und markante Lage. Die barockisierende Villa zeichnet sich mit Mansardenwalmdach, ionischen Eckpilastern und nach Süden und Norden gerichtetem Schweifgiebel aus. Hervorzuheben sind die Segmentbogengiebel sowie der Windfang und Eingang im Stil einer Kapellenvorhalle. Zum Wohnhaus gehört auch ein grosser Garten mit zum Teil historischem Baumbestand.

Rückführung zur «Villa»

Die ursprüngliche noble Villa, erbaut für die Familie Kaderli, wurde mehrfach umgebaut und bis heute als Dreiparteienmehrfamilienhaus genutzt. Die inhaltliche Nutzung und Aufgliederung des Hauses hat die Strukturen massgeblich verfremdet. Im Jahre 1966 wurde u.a. ein Schwimmbad im Sockelgeschoss gebaut. Anfangs 1980 erfolgte die Unterteilung der Villa in drei Parteien was zum Ausbau des Sockelgeschosses als Wohngeschoss zulasten der Arkaden geführt hat. Die Grösse des Hauses war durch die Zergliederung nicht mehr lesbar.

Klärung der Hauptstruktur

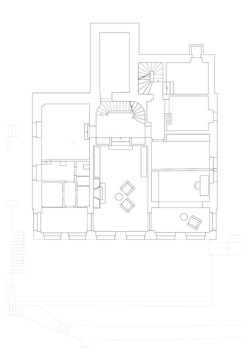
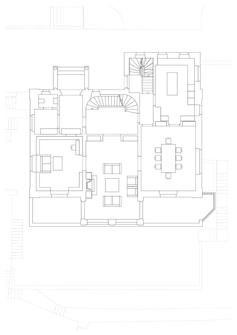
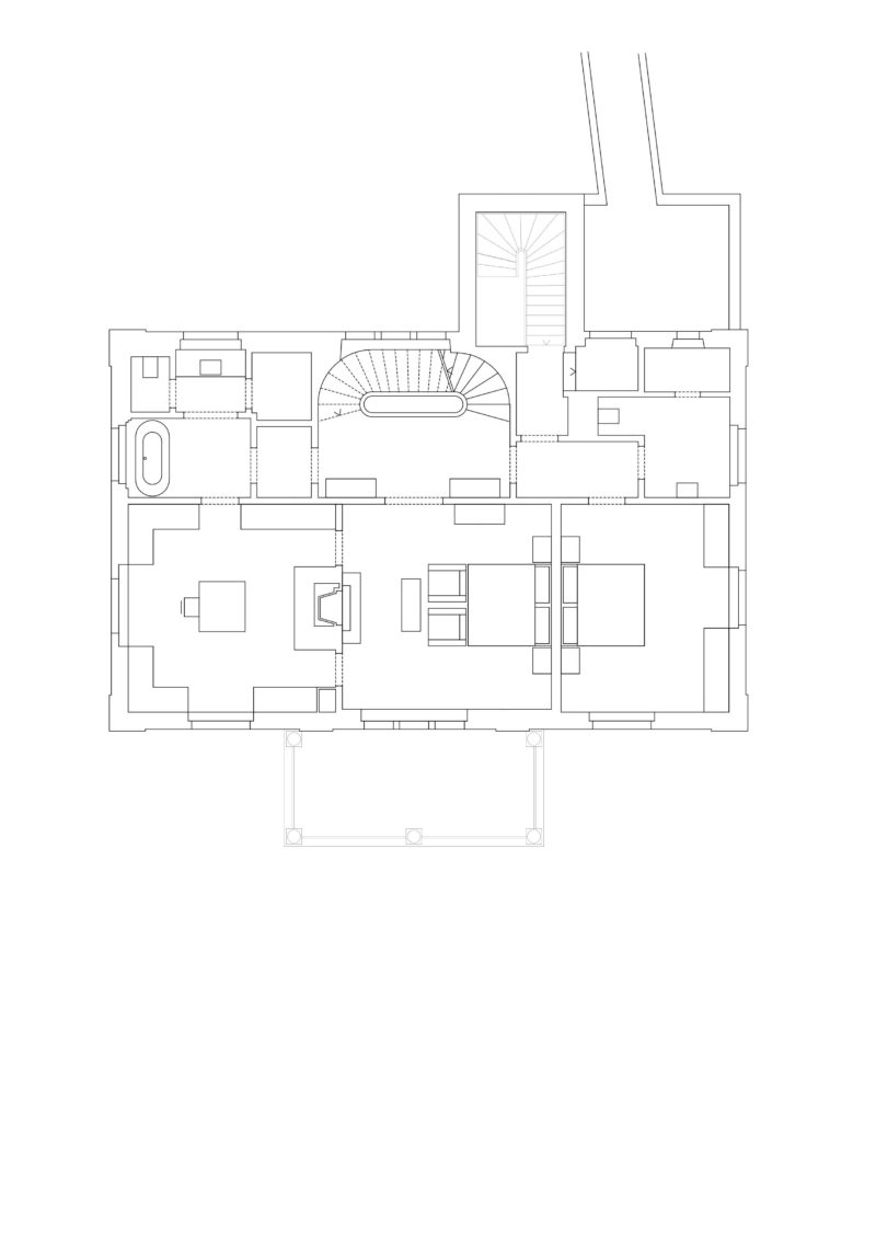
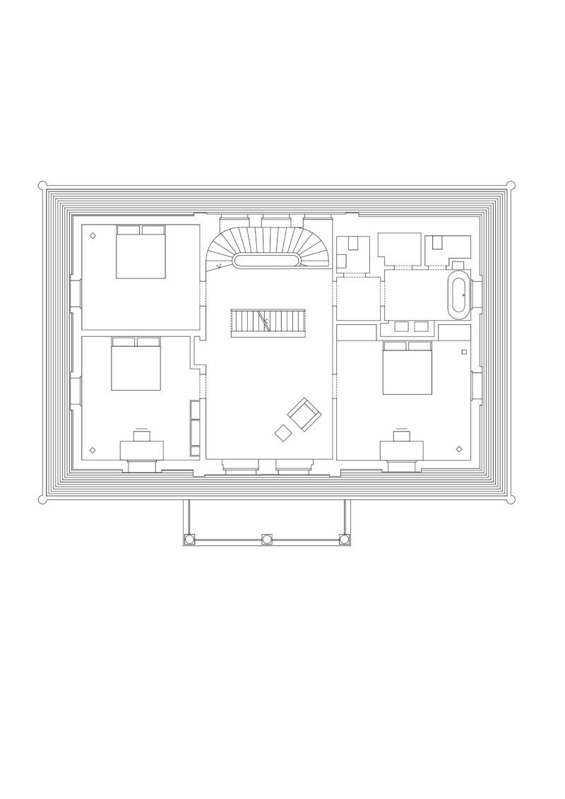
Die Rückführung des Hauses in seine ursprüngliche Funktion als Familienvilla ist eine glückliche Fügung. Dem Gebäude soll die einstige Grosszügigkeit durch Klärung der Hauptstrukturen zurückgegeben werden. Die typische Sechsteilung des Grundrisses soll über alle Geschosse lesbar sein. Drei tiefe Haupträume im Süden, ein Treppenhaus im Zentrum und zwei Nebenräume an den nördlichen Flanken, ergeben eine einfache Ordnung. Achsial gesetzte Türen verbinden die Räume und schaffen weite Blickachsen und Umgänge. Im Erdgeschoss entsprechen Einteilung wie Proportionen diesem Grundsatz. Im 1. Obergeschoss sollen die beiden Mittelwände auf die Achsen des Erdgeschosses verschoben werden. Das Mittelzimmer präsentiert sich so in adäquater Grösse und Symmetrie zum Balkon hin. Die Zugangskonflikte können so strukturell gelöst werden. Die schmuckvollen Decken-Wandkehlen werden rekonstruiert. Im 2. Obergeschoss soll der aus zwei Räumen zusammengelegte Raum wieder wie ursprünglich geteilt werden. Heruntergehängte Decken wie auch aufgegossene Unterlagsböden werden entfernt. Die Räume erhalten ihre alten Proportionen zurück. Der Bodenaufbau erfolgt danach im Trockenaufbau und Massivparkett ohne Bodenheizung. Das Dachgeschoss verlässt die Sechsteiligkeit. Ein offener Dachraum fügt sich in die Dachschrägen.
Das Sockelgeschoss wird von den heruntergehängten Decken befreit und der Boden wird in aufwändiger Abbrucharbeit auf seine ursprüngliche Höhe abgesenkt. Die Verandazone kann dank Mauervorsprüngen und Stürzen wieder ausgebildet werden.

Hierarchie der Treppenanlagen

Die Haupttreppe liegt im Zentrum des Hauses. Die Nebentreppe, ehemals Bedienstetentreppe, führt im turmartigen Anbau ausserhalb der Hauptstruktur ins 1.OG und erschliesst zusammen mit der leider unschönen aber erwünschten Brücke einen Nebeneingang.
Die neue Haupttreppe führt von der Eingangshalle in repräsentativer Weise bis ins 2. Obergeschoss. Der obere Lauf wird analog zum unteren beidseits gewendelt und respektiert die Hauptraumstrukturen des 1. Obergeschosses und bindet die Hauptgeschosse zusammen. Der Zugangskonflikt beider Treppen wird so mit Hilfe der Grundstruktur gelöst. Eine kompakte Dachtreppe führt, in Anlehnung an die ursprüngliche Estrichstiege, ins Dachgeschoss. Die Treppe ins Untergeschoss führt diskret geschlossen unter der Haupttreppe in die Halle des Sockelgeschosses.

Dramaturgie der Raumabfolgen

Die szenische Dramaturgie der Raumabfolgen damaliger Villenarchitektur soll wieder aufleben. Auftakt bildet der kapellenartige Haupteingang und Windfang in Naturstein als Hauptankunftsort. Von hier aus gelangt man in die Empfangshalle wo eine ausladende Treppe ins Obergeschoss führt. Über eine gläserne Schwingtüre gelangt man ins Cheminéezimmer. Ein Weitblick über die Stadt eröffnet sich. Zwei symmetrisch angeordnete Portale führen zum West- und Ostsalon. Die beiden reich dekorierten orginalen Deckenspiegel sollen mit neuem Holztäfer an den Wänden umrahmt werden, und die Räume zusätzlich an Würde gewinnen.
Eine neue ausladende Treppe barocker Formensprache und gespiegelter Laufrichtung soll die zu steil und steif geführte alte Treppe ersetzen. Sie führt in weitem Schwung um ein Treppenauge herum in die grosszügige Vorhalle der Hauptschlafräume. In gleicher Form führt die Treppe zu den Kinderzimmern im 2.OG und ersetzt so die alte, defekte Treppe. Hier eröffnet sich eine neue Welt der Kinder. Farben und kubische Einbaumöbel gestalten die Räume. Eine Architektur die sich über eine verspielte Treppenbox im Dachraum komplett von der barocken Stilistik befreit.
Auch die Unterwelt im Sockel offenbart sich als grosszüge schlicht gestaltete Halle mit modernem Wellnessbereich, Gästezimmer und rückwärtigen Kellerräumlichkeiten.

Ersatz und Erhalt

Die profilierten Türeinfassungen, Lamperien und Fenstereinfassungen sind weitestgehend intakt. Die Deckenspiegel sind im EG und 1. OG original mit Randkehle und teils reicher Stukatur versehen. Der Windfang zeichnet sich durch sein charakteristisches Natursteinbrusttäfer und Bodenplatten aus. Diese wertvollen Details gilt es zu bewahren, zu sanieren und allenfalls zu ergänzen. Das Nebentreppenhaus ist ein wichtiger Zeitzeuge dieses Villentypus weshalb dieses auf jeden Fall bewahrt werden soll.
Einige Detailausführungen entsprechen nicht der architektonischen Qualiltät der Villa. Im Wissen um die mögliche Originalsubstanz der Haupttreppe begründet sich deren Ersatz mit einer gesamthaften Grundrissklärung. Die alte Treppe ist zu steil geführt und zwängt sich unschön um den Deckenabsatz herum. Dies entspricht nicht der Vorstellung einer barocken, kraftvollen Treppe. Die schlicht gestaltete Treppe ins 2. OG harmoniert in keiner Weise mit der barocken Treppe ins EG.

Aufwertung der Fassade

Die Fassade des beinahe 100 jährigen Hauses hat wie das Innere einige Veränderungen seit der Bauzeit erfahren. Diese haben leider zur Schwächung des baulichen Ausdrucks geführt. Die Fassade wirkt trotz ihrer guten Proportionen platt und monochrom. Die Fenster sind rudimentär als fensterhohe Flügel unterteilt und mit Holzmetallrahmen steril im Ausdruck.
Ziel ist es der Fassade die barocke Reliefcharakteristik zurückzugeben. Diese ist für die Nahbetrachtung wie auch die Weitwirkung wichtig.
Als erste Invention werden die einst beabsichtigten, aber niemals vorhandenen Holzklappläden eingeführt, die dem Haus ausgewogene Proportionen sowie Tiefenwirkung verleihen werden.
Als zweite Intervention werden die stilfremden Alufenster durch profilierte Holzfenster ersetzt. Die typisch unterschiedlichen Fensterformate der Villa erhalten durch die Setzung von Stadtflügel, Kämpfer, feiner Sprossenstruktur sowie Brüstungstäfer die ursprünglich schmuckvolle Detailierung der Bauzeit.

Balkone und Terrassen

Die aktuell in Aluminium materialisierten Eckausbildungen der Balkone werden durch mural verputze Eckpilaster ersetzt und geben der geschwungenen Metallbrüstung Halt. Eine symmetrisch angeordnete Treppenanlage soll künftig von der Veranda aus in den Garten führen und so eine erlebbare Anbindung des steil abfallenden Parks zum Haus bewirken.