Multergasse, Altstadt St.Gallen (SG)

Umbau der Kaffeerösterei Baumgartner

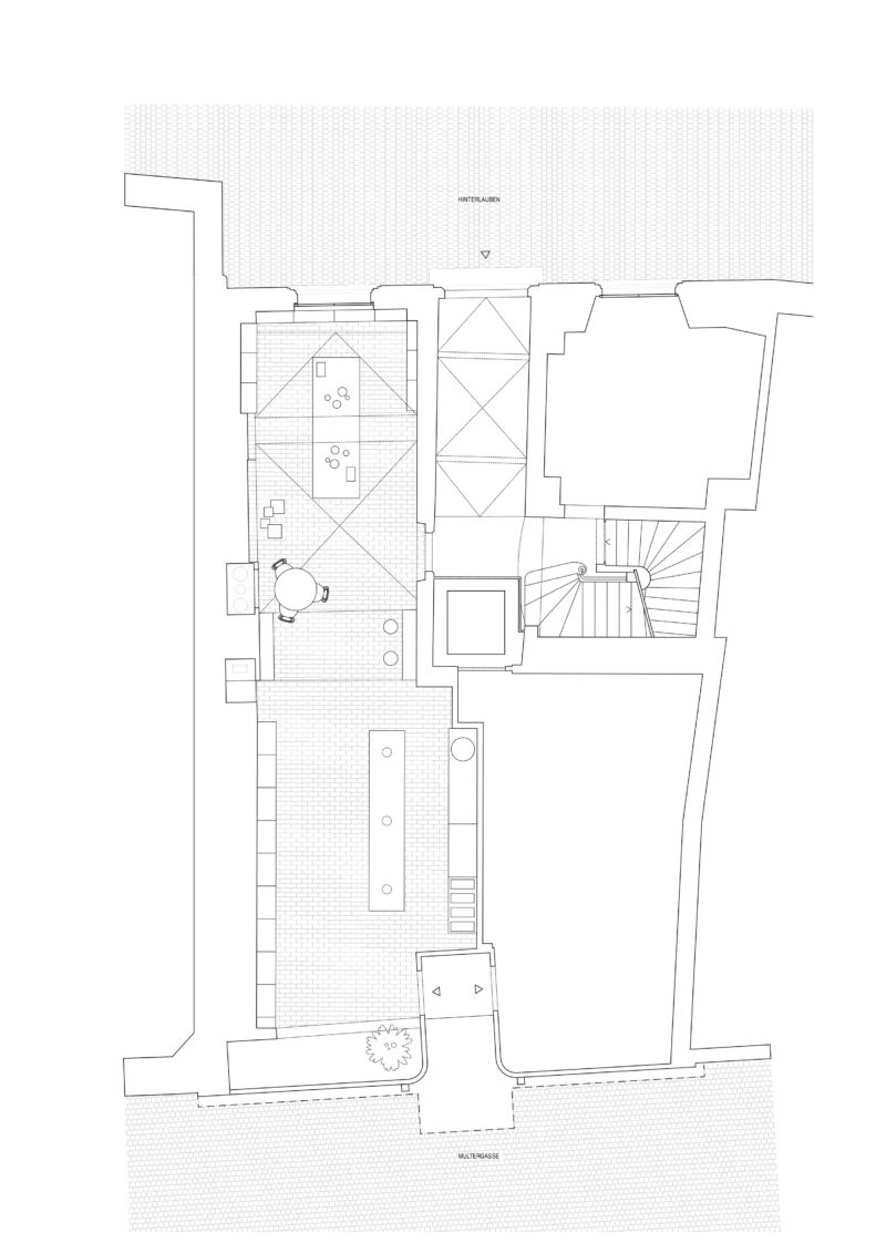
084A_02
Die Fassade des Ladens wurde in den Zustand von 1903 zurückversetzt.

Direktauftrag 2016
Fertigstellung 2018

Fotografien: Anna-Tina Eberhard

Das Kaffeegeschäft soll wieder die Atmosphäre der Jahrhundertwende ausstrahlen

Seit 1799 gibt es das Kolonialwarengeschäft Baumgartner an der Multergasse. Um 1900 wurde die erste Kaffee-Röstmaschine in Betrieb genommen und noch immer wird nach den alten Rezepten aus jener Zeit gemischt. Die sechste Generation, die das Geschäft heute führt, ist sich dieser Tradition bewusst und hat sich deshalb entschlossen, den Betrieb für die nächste Generation fit zu machen und die alten Wohngeschosse wieder zu beleben.

Die Gesamtsanierung der Liegenschaft soll unter laufendem Betrieb etappenweise umgesetzt werden. Der Laden im Erdgeschoss ist bereits vollendet. Nun folgen die Manufakturräumlichkeiten im 1.Obergeschoss sowie die Wohnungen in den weiteren Obergeschossen. Ein neuer Glaslift erschliesst Keller, Kaffeemanufaktur, Teelager und Wohnungen.

Die beiden Ladenlokale wurden saniert, die historischen Gewölbe restauriert, da und dort ein Relikt der früheren Zeit hervorgeholt oder störende Einbauten vergangener Sanierungen entfernt. Das grösste Augenmerk galt aber der  Neugestaltung der Schaufensterfront. Wir wagten einen Schritt zurück und orientierten uns bei der Neugestaltung an der Fassung des bekannten St.Galler Baumeister und Architekten Wendelin Heene, der 1903 erstmals eine eigentliche Schaufensterfront in dieses 500-jährige Haus einbaute. Eine Rundverglasung und profilierte Eichenrahmen sollen die Atmosphäre der Jahrhundertwende ausstrahlen und moderne Bautechnik mit traditioneller Handwerksarbeit verbinden.

Lesen Sie auch die Reportage.